Verkocht:Tjalk 9, 8446 EH Heerenveen - Foto
Verkocht
+22

Tjalk 9 8446 EH Heerenveen

  • Woonhuis
  • 6 kamers
  • 5 slaapkamers
  • 1 badkamers
  • Bouwjaar 1973
  • 155 m² perceeloppervlakte
  • 118 m² gebruiksoppervlakte
  • A Energielabel A

Beschrijving

Royale gemoderniseerde tussenwoning met maar liefst vijf slaapkamers en energielabel A

Bent u op zoek naar een woning met veel licht, volledig gerenoveerd én geïsoleerd en ook nog eens gesitueerd op een perfecte locatie, dan is deze fijne tussenwoning uit 1973 iets voor u!

Gelegen aan de rand van de groene woonwijk De Greiden, met het prachtige recreatiegebied 'De Heide' om de hoek, op loopafstand van een winkelcentrum met meerdere supermarkten, een drogisterij, apotheek en cafetaria.

Voor wat meer reuring stap je op de fiets en rij je naar het levendige centrum van Heerenveen met veel leuke winkels, gezellige restaurants en knusse barretjes.

Bus- en treinstation zijn dichtbij met uitstekende verbindingen.

Er is een brede keus aan scholen en sportfaciliteiten.

In 2009 is de woning aan een grondige verbouwing onderworpen. Er werd een aanbouw gerealiseerd voor een nieuwe keuken, er kwam een toilet op de begane grond en er werd vloerverwarming aangelegd. De gehele woning kreeg verder kunststof kozijnen voorzien van HR++ glas, en tenslotte zijn recentelijk 8 zonnepanelen geplaatst. Hierdoor beschikt de woning over een uitstekende isolatiewaarde en draagt het predicaat energielabel A.

De eerste verdieping bestaat uit drie slaapkamers en een badkamer. De badkamer is uitgerust met een douche, een wastafelmeubel en beschikt over een tweede toilet. De tweede verdieping telt nóg eens twee extra slaapkamers. Op deze verdieping bevinden zich eveneens de witgoedaansluitingen.

De grote raampartijen, de maar liefst vijf slaapkamers en de met zorg aangepakte modernisering en isolering maken deze woning tot een waarachtig pareltje.

Kaart

Kenmerken

Overdracht

Referentienummer
22
Vraagprijs
€ 300.000,- k.k.
Elektra
€ 75,-
Gas
€ 125,-
Water
€ 26,-
Inrichting
Niet gestoffeerd
Inrichting
Niet gemeubileerd
Status
Verkocht
Aanvaarding
In overleg
Aangeboden sinds
Woensdag 26 maart 2025
Laatste wijziging
Dinsdag 13 mei 2025

Bouw

Type object
Woonhuis, eengezinswoning, tussenwoning
Soort bouw
Bestaande bouw
Bouwperiode
1973
Dakbedekking
Dakpannen
Type dak
Zadeldak
Isolatievormen
Volledig geïsoleerd

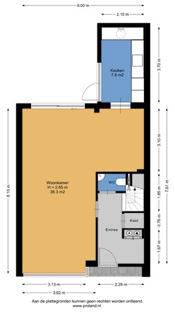
Oppervlaktes en inhoud

Perceeloppervlakte
155 m²
Woonoppervlakte
118,2 m²
Inhoud
419 m³
Oppervlakte externe bergruimte
12,8 m²
Oppervlakte gebouwgebonden buitenruimte
1,3 m²

Indeling

Aantal bouwlagen
3
Aantal kamers
6 (waarvan 5 slaapkamers)
Aantal badkamers
1 (en 1 apart toilet)

Locatie

Ligging
Aan rustige weg
In woonwijk

Tuin

Type
Achtertuin
Hoofdtuin
Ja
Oriëntering
Noord-oost
Heeft een achterom
Ja
Tuin 2 - Type
Voortuin
Tuin 2 - Oriëntering
Zuid-west

Energieverbruik

Energielabel
A

CV ketel

CV ketel
Bosch compact 4 HR-107
Warmtebron
Gas
Bouwjaar
2009
Combiketel
Ja
Eigendom
Eigendom

Uitrusting

Warm water
CV-ketel
Verwarmingssysteem
Centrale verwarming
Vloerverwarming (gedeeltelijk)
Ventilatie methode
Mechanische ventilatie
Keukenvoorzieningen
Inbouwapparatuur
Badkamervoorzieningen
Douche
Toilet
Wastafel
Glasvezelaansluiting aanwezig
Ja
Tuin aanwezig
Ja
Beschikt over een internetverbinding
Ja
Heeft schuur/berging
Ja
Heeft een dakraam
Ja
Heeft een schuifpui
Ja
Heeft zonwering
Ja
Heeft zonnepanelen
Ja
Heeft ventilatie
Ja

Kadastrale gegevens

Kadastrale aanduiding
Heerenveen A 6870
Perceeloppervlakte
155 m²
Omvang
Geheel perceel
Eigendomsituatie
Eigen grond

Media

Plattegronden